
這是一間 18 坪、兩人居住的頂客宅。屋主是高階經理人,生活節奏快、在家時間珍貴;他們要的不是「看起來像樣品屋」,而是一個能把日常照顧好、也能把情緒安放好的家。
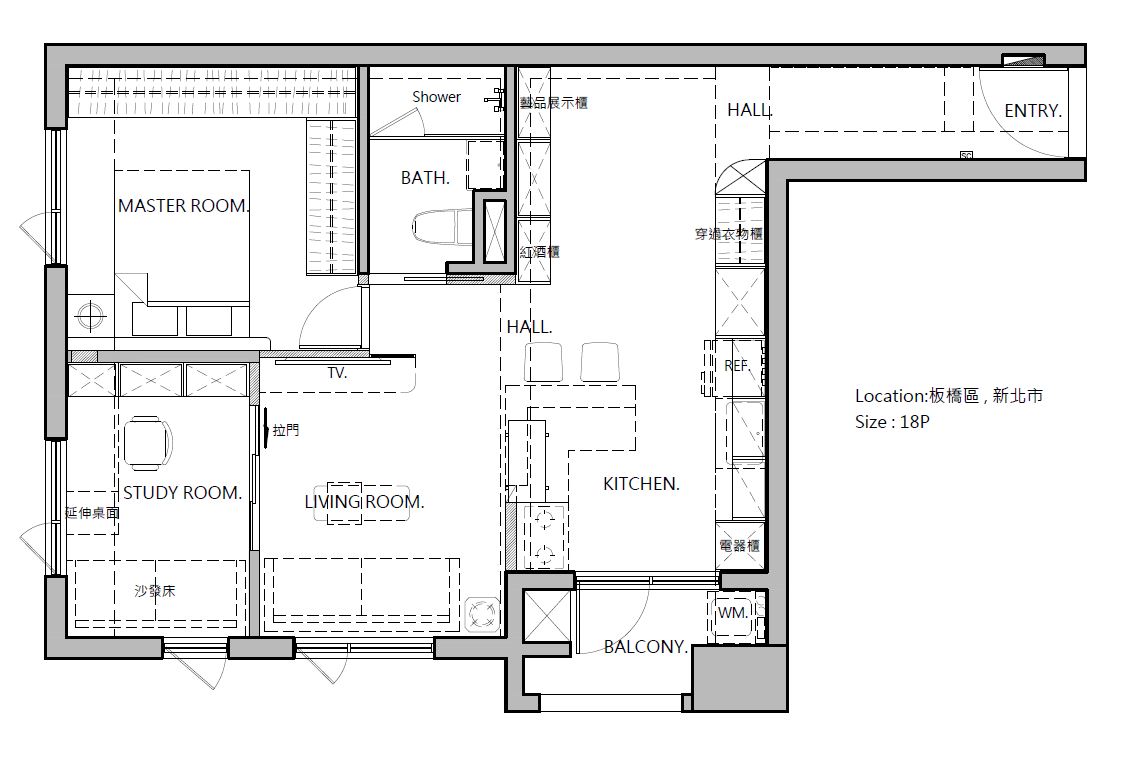
原始格局其實是以「藝術工作室」為主軸配置:中島式爐台、較偏展示與創作的動線,放到真正居住使用後,反而不夠順手。於是我們的改造方向很明確——把空間從工作室語言,轉成居家語言:更實用的餐廚、更完整的主臥、更清楚的收納與生活情境。
公領域採取更開放的配置,將原本中島式爐台改為開放式廚房,並新增電器櫃,把日常會用到的器具、備品與動線一次收斂。料理、備餐、收納不再「擺一圈」,而是回到真正住家需要的效率與整潔。
同時規劃小型視聽區,讓下班後的放鬆有固定的位置;並保留工作室兼休憩區,在高度使用的居住節奏裡,維持「專注」與「喘息」的彈性。




主臥空間做了適度延伸,爭取到更完整的臥室尺度。這不只是變大,而是讓衣櫃容量、走道寬度、開門動線回到好用比例;對兩人長期居住來說,主臥的舒適度與收納量,往往就是生活品質的底盤。


屋主喜歡室內植物,因此特別加入仿日照燈;並在全室配置可調光崁燈,可依照工作 / 觀影 / 用餐 / 放鬆切換色溫與亮度。光不只是照明,而是讓空間在不同時段,都維持同樣的質感與舒適。


天花板的圓弧造型不是裝飾,而是整體語言的起點。全室只要是轉角櫃,皆採弧形收邊,讓視覺不被銳角切斷,也讓櫃體與天花上下呼應。越簡潔越考驗比例與細節,而一致性會讓空間更安定、更耐看。



以下為本案完工實景:









如果你也有 15–20 坪左右的新屋或中古屋,想把格局從「好看」調整成「真正好住」,並把動線、收納與光環境一次做到位,歡迎透過「線上諮詢」或官方 LINE 與我們聊聊。
我們會先從生活需求與預算範圍開始,一起找到適合你的改造方向。